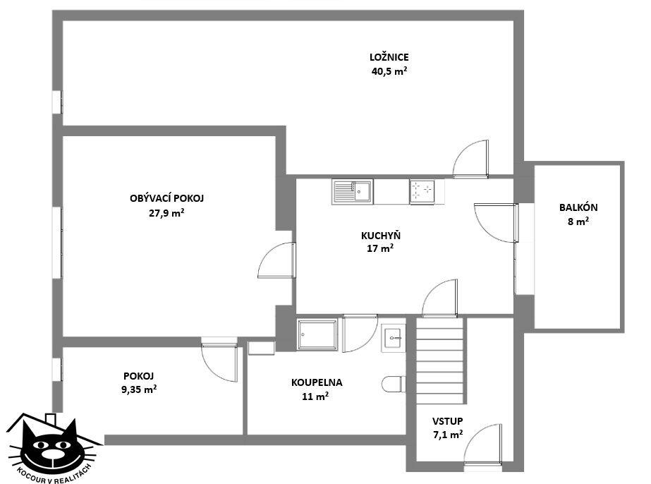
Nabízíme nezávaznou prohlídku nového, velkého a slunného bytu 3+1 s prostorným balkónem a se samostatným vchodem. Toto velkoryse pojaté podkroví rodinného domu, které se nachází ve vilové čtvrti v Příbrami II ve Fibichově ulici poblíž Svaté Hory, je určené k prvnímu nájmu. Má obytnou plochu o nadstandardní velikosti 113 m2 a jeho centrem je kuchyň (17 m2) s novou kuchyňskou linkou včetně spotřebičů (varná el. deska, horkovzdušná trouba, digestoř, myčka). Z kuchyně se vstupuje na balkón (8 m2), vhodný k letnímu grilování či klidnému posezení, a do obývacího pokoje (28 m2), na který navazuje další místnost (9,3 m2). Z centrální kuchyně je přístupná též ložnice (40,5 m2) s prostorem vhodným pro šatnu a světlá koupelna s moderním keramickým obkladem (11 m2). Fibichova ulice se nachází v širším centru města (10 min chůze), orientovaném směrem na Prahu (bus 5 min chůze, dálnice 5 min jízdy), MHD ve vedlejší ulici. Parkování před domem. Tento moderní byt je na zbytku domu téměř nezávislý, je elektrifikován přes samostatný elektroměr, vytápění a ohřev vody zajišťuje elektrokotel pouze pro toto podlaží, spotřebu vody eviduje podružný vodoměr. Podlahy vinil a dlažba, plastová okna s dvojsklem, střešní s trojsklem. Zálohy kalkulovány na 3 osoby včetně záloh na elektřinu, na vodné a stočné. Byt nekuřácký, bez zvířat. V případě pronájmu cizinci nutná domluva v českém jazyce bez prostředníka. Máme zájem o dlouhodobý, pohodový a bezproblémový nájemní vztah respektující naprosté soukromí. K dispozici tv. anténa - využití zdarma. Internet vzduchem, poplatky nejsou zahrnuty v nájmu. Pronajímatel umožní uložení například jízdních kol v suterénu domu. S ohledem na schodiště a celkovou dispozici domu není byt vhodný pro rodinu s malými dětmi. Řádná smlouva o nájmu, vratná kauce 35 000 Kč, provize RK 15 000 Kč. Doplňující informace či případnou prohlídku zajistí RK, spravující výhradně tuto nemovitost. Nabízíme férové a slušné jednání, totéž očekáváme.
- Dispozice bytu:3+1
- Podlaží v domě:2
- Počet podlaží v domě:2
- Celková podlahová plocha:113 m2
- Druh objektu:cihlová
- Stav objektu:novostavba
- Vlastnictví:osobní
- Výška stropu:2.5
- Balkón:8 m2
- Sklep:3 m2
- Umístění objektu:klidná část obce
- Doprava:vlak; dálnice; silnice; MHD; autobus
- Elektřina:Elektro - 400 V
- Voda:Vodovod
- Odpad:Kanalizace
- Ostatní rozvody:Ostatní rozvody
- Energetická náročnost budovy:C - Úsporná
- Energetický ukazatel
podle vyhlášky:č. 264/2020 Sb. - Plocha balkónu:8 m2
- Předzahrádka:30 m2
- Počet parkovacích míst:2
